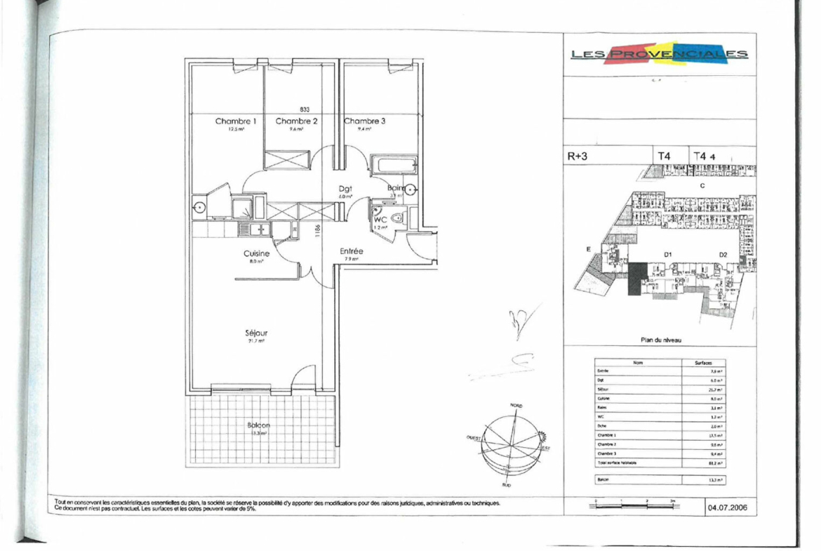
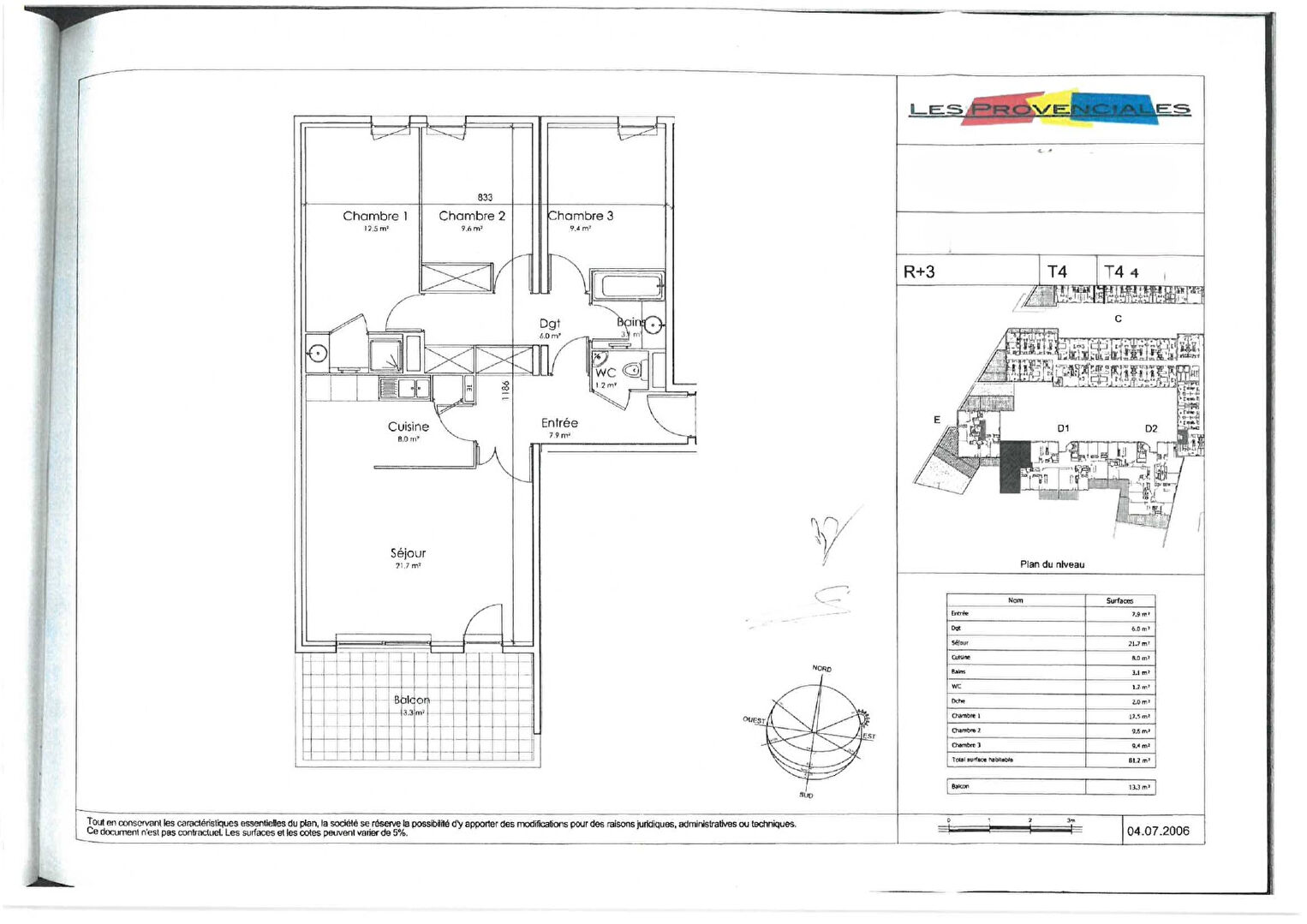
Idéalement situé Boulevard Limbert à Avignon, face aux remparts, découvrez cet appartement d’environ 80m², lumineux niché au 3 éme étage avec ascenseur d’une résidence récente et sécurisée.
Il offre une belle pièce de vie avec cuisine semi-ouverte, prolongeant l’espace vers une agréable terrasse d’environ 14 m², parfaite pour profiter de la vue dégagée.
Côté nuit, vous trouverez trois chambres, dont une avec sa salle d’eau privative, ainsi qu’une salle de bains supplémentaire et des toilettes indépendantes.
Vous apprécierez son calme, sa luminosité, et le confort moderne de la résidence.
En sous-sol, une place de parking privative pour 2 véhicules et une cave complètent ce bien rare.
Possibilité de l’acquérir meublé pour plus de simplicité.
Copropriété de 327 lots – dont 125 lots habitation. (Pas de procédure en cours).
Charges annuelles : 20 euros.
Rana SEMAAN (EI) Agent Commercial – Numéro RSAC : 888782885 – AVIGNON.



















